Announcing the LILY A
Featuring Front and Back Porches, the Lily A Captures the Spirit of Baton Rouge
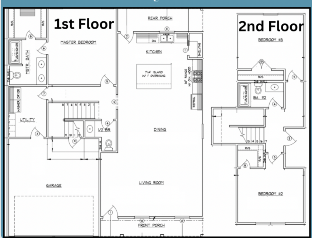
The Lily is a two-story, 3 bedroom 2.5 bathroom plan with welcoming front and back porches and an inviting open living area. The kitchen features a large island and is open to the dining room and living room. The main bedroom suite has windows overlooking the backyard, an ensuite bath with double vanities, and a walk-in closet. Bedrooms 2 and 3 are located upstairs and share a bath. There is a centrally located half bath – perfect for guests – and a large utility room located right off of the 2-car garage.

