Learn More About the MAGNOLIA A
Explore the Magnolia A: Our Stylish 3-Bedroom Haven With Open Living Area in Baton Rouge
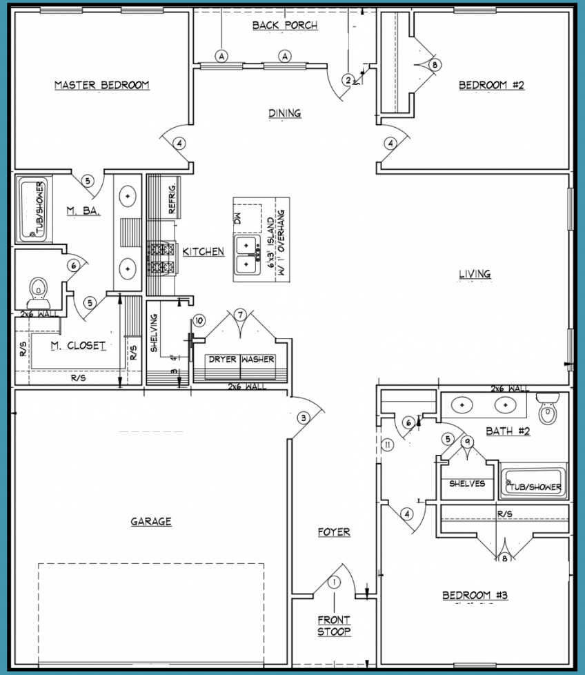
The Magnolia is a single-story, 3 bedroom 2 bathroom with an inviting open living area. The kitchen features a large island with a sink and is open to the living room and dining room. The main suite has windows overlooking the backyard, an ensuite bath with double vanities, and a spacious walk-in closet. Bedroom 2 is located at the rear of the home, and bedroom 3 is located in the front of the home. Bedroom 2 and 3 share a hall bath with double vanities and a water closet. This plan also features a nice, welcoming back porch and a 2-car garage.

